Ficha
CALLE DE ALMAGRO
Madrid (Almagro) - REF. 1280

357 m2

4

5

1

3
venta: 6.500.000 €
Descripción
PROPIEDAD ACTUALMENTE EN OBRAS


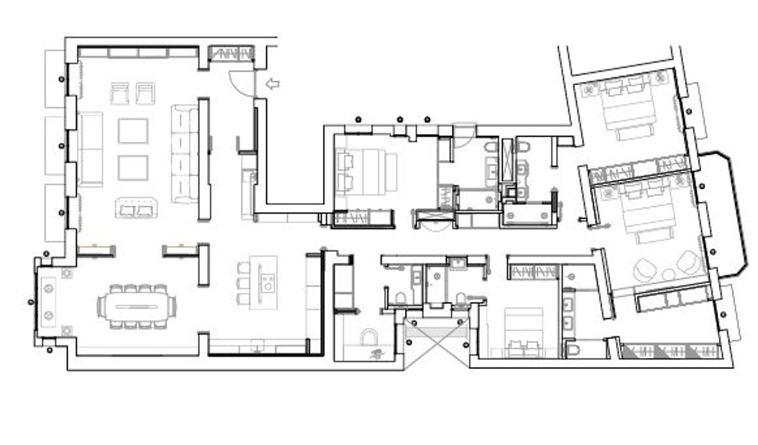
HOMECOLLECTION presenta esta espectacular vivienda en proceso de reforma de 357 m² en la calle Almagro. La vivienda dispone de 4 amplios dormitorios, todos con baño en suite, 1 aseo, un despacho, una terraza privada en el dormitorio principal, un gran salón-comedor con tres balcones y una cocina abierta totalmente equipada. Además, cuenta con una gran plaza de garaje, 2 trasteros, ascensor y portero físico.

La vivienda se encuentra actualmente en reforma; mostramos fotos de otro proyecto de similares características. Se entrega amueblada y decorada.

Ubicada en la 3ª planta de un edificio clásico con una impresionante fachada, la vivienda combina el encanto de la arquitectura tradicional con todas las comodidades modernas.

Se distribuye en 4 amplios dormitorios, todos con baño en suite, destacando el dormitorio principal con vestidor y terraza privada. Además, cuenta con un despacho independiente, un gran y luminoso salón-comedor con tres balcones exteriores y una cocina abierta totalmente equipada que se integra con el espacio.

La propiedad dispone de una gran plaza de garaje, 2 trasteros privados, aire acondicionado y un sistema domótico avanzado, que permite controlar de manera eficiente la climatización, iluminación y otros elementos del hogar.


Para más información y concertar una visita, no dude en contactar con HOMECOLLECTION.

Características
Precio Venta 6.500.000 €
Año de construcción 1940
Construidos 357 m2
Precio/m² 18.207
Dormitorios 4
Baños 5
Amueblado
Cocina Amueblada
Calefacción Calefacción centralizada
Trastero
Altura/Planta 3
Estado En obras
Tipo de suelo Roble Natural
Ascensor
Aire acondicionado
Garaje
Calificación Energética En trámite
Luz
Gas
Agua
Conserje
Vigilancia accesos
Escalas de eficiencia



Tu agente
Fernando Gómez Cuétara (Venta)
Contáctanos

Si deseas más información sobre esta propiedad, por favor, rellena el formulario.

 Sí, he leído y/o acepto las Condiciones de uso y la Política de privacidad
Galería
Inmuebles similares:
 
7.490.000 €
Ref. 1155  413 m2  3  4
Piso en venta en Madrid, con 403 m2, 3 habitaciones en suite, Ascensor, Amueblado, Aire acondicionado y Calefacción Individual con Gas Natural.
 
6.850.000 €
Ref. 1284  320 m2  3  4
Piso en venta en Madrid, con 308 m2, 3 habitaciones y 4 baños, Piscina, 2 plazas de Garaje, Ascensor, Amueblado, Aire acondicionado y Calefacción Aerotermia.