Esta excelente propiedad en la mejor zona de Madrid tiene un diseño moderno internacional creado por un reconocido estudio de interiorismo y los acabados de primera clase creados mediante las calidades más nobles existentes como el mármol dolomita y la madera de roble natural, hacen de esta propiedad un hogar especial.
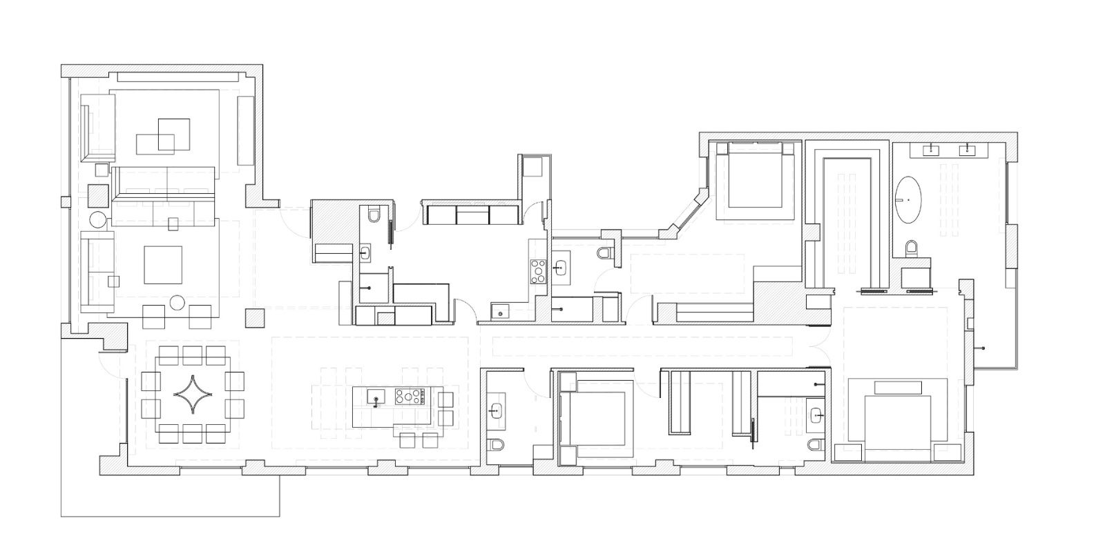
Techos altos, mobiliario a medida de marcas italianas, las últimas tecnologías como sistema Casambi para control y creación de escenas de iluminación, sistema de sonido B&Wy por supuesto la luz natural que entra por los grandes ventanales orientados al Este y Norte en el exterior y al Oeste en el interior de la vivienda. Todas las paredes están revestidas de madera roble y paneles lacados con entrecalles de acero para las zonas comunes y Alcántara y mármol para los dormitorios. Una gran zona de recepción, en la que destaca la incrustación de tarima de roble en el suelo de mármol dolomita de gran formato, con comedor integrado y mesa para hasta doce personas.
Este espacioso salón tiene acceso a una agradable terraza desde la que se disfruta de unas vistas despejadas. Un aseo de invitados completa la zona social. La cocina totalmente equipada con electrodomésticos de primera marca y vinoteca, con isla central y abierta al salón permite disfrutar de agradables reuniones informales. Esta propiedad también dispone de una segunda cocina independiente, más funcional. En este amplio espacio encontramos una cocina completa , zona de lavandería, y una cama de servicio oculta , se convierte de una manera sencilla en un dormitorio y un baño junto con la puerta de servicio, que se puede definir como un apartamento independiente.
La zona de noche consta de tres dormitorios de generosas dimensiones con baños en suite y amplios armarios. Destacan los modernos cuartos de baño con paneles de mármol y madera creados a medida de tal forma que se mantienen por toda la casa las mismas calidades que por las zonas principales. El sistema Casambi nos permite tener una iluminación adaptada para cada situación de tal forma que en la noche podemos tener un ambiente mucho más relajado y confortable.
La calefacción y la refrigeración son por suelo radiante, producido por aerotermia controlada de manera independiente para cada estancia lo que reduce considerablemente el consumo de energía y aumenta el confort y la estética.
El edificio se construyó en 1964 bajo los preceptos estéticos del funcionalismo. De planta cuadrangular, destaca por ser un edificio exento, de modo que cada vivienda tiene tres orientaciones. Las zonas comunes están muy bien cuidadas. Dos trasteros y una plaza de garaje en el edificio complementan esta propiedad. Hay un portero todos los días de la semana , uno de lunes a viernes y un segundo portero para los fines de semana.
Máximo lujo y confort en una de las mejores zonas de la Castellana.